
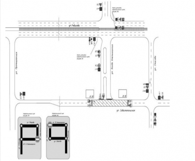
В Засвияжском районе Ульяновска на все три летние месяца перекроют улицу Севастопольску. Это связано с земляными работами, сообщили в мэрии.
- Ульяновский филиал ПАО «Т Плюс» запланировал капремонт 290 погонных метров тепломагистрали на улице Севастопольской, восстановление 5000 квадратных метров теплоизоляции и замену 380 единиц запорной арматуры, - пояснила пресс-служба городской администрации.
В связи с этим с 7:00 1 июня и до 24:00 31 августа будет ограничено движение транспорта по улице Севастопольской на участке от Стасова до Богдана Хмельницкого (включая перекресток).

Алина Николаева







